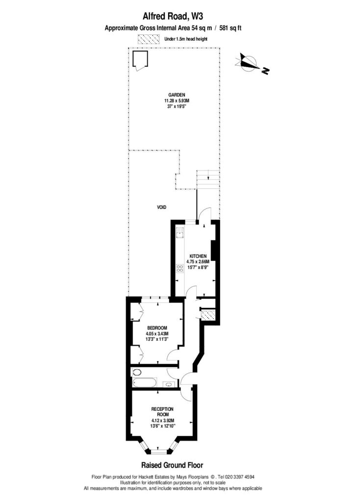
A large one double bedroom raised ground floor garden flat located along a residential road off of Acton High Street on the fringes of Poets Corner. The property comprises of a 13'6 reception room, 15'7 eat-in ktichen, double bedroom with fitted wardrobes, and a modern fitted three piece bathroom. The property further benefits from high ceilings throughout and has a lovely rear garden area for your enjoyment. Two storage cupboards to the hallway provides excellent storage space.
The flat is within walking distance from all local amenities along Acton High Street and is served by excellent local bus services. Alfred Road is also only 0.17 miles from Acton Central station (with links into Richmond, Kew & North London) and a mere 0.68 miles to Acton Town tube.
Remaining Lease 982 years.
Ground Rent: £ ZERO per annum
Service Charges: £440 per annum (approx)
COUNCIL TAX BAND: C (Ealing)
EPC RATING C
Gas Central Heating & Hot Water via Combi Boiler
Electric: Mains Supply
Mains Cold Water
*the ground rent, service charge & lease have been provided by the property owner and your solicitor will need to confirm these details should you wish to purchase the property.
Measurements:
Reception Room:
4.12m x 3.92m (into bay window)
(13'6 x 12'10)
Bedroom:
4.05m x 3.43m
(13'3 x 11'3)
Kitchen:
4.75m x 2.66m
(15'7 x 8'9)
Garden:
11.28m x 5.93m
(37'0 x 19'5)
Total Gross Internal Area:
54 SqM / 581 Sq Ft
NOTE: The measurements listed are to act as a guide only. The floor plans (if any) are not to be used to for carpet sizes or for furnishings. These particulars should not be relied upon as accurately describing any of the specific matters described by any order under The Property Misdescriptions Act 1991. This information does not constitute a contract